見圳客戶端·深圳新聞網2019年10月21日訊 記者從龍崗發布微信公號獲悉,近日,龍崗兩個片區城市更新規劃(草案)公示啦!分別是寶龍街道南約積谷田和坪地街道冠云片區,涉及這兩個片區的公共配套,如幼兒園、公共租賃住房、社區健康服務中心等,一起來看看吧!
寶龍街道南約積谷田更新單元
近日,龍崗區城市更新和土地整備局發布了一則關于《龍崗區寶龍街道南約積谷田更新單元規劃修改(草案)》的公示。
項目概況及規劃修改內容
本項目位于寶龍街道廈深鐵路與高科西路交匯處,具體修改內容如下:
1、一期01-02-01地塊
社區健康服務中心建筑面積由600㎡調整為1000㎡,公交首末站5000㎡(含電動車公共充電站)調整為公交首末站4300㎡、公共充電站700㎡,垃圾轉運站、公共廁所、再生資源回收站、環衛工人作息站共700㎡調整為小型垃圾轉運站480㎡、再生資源回收站100㎡、公共廁所100㎡、環衛工人作息室20㎡,地塊計容積率建筑面積由125000㎡調整為125400㎡。
地塊機動車出入口位置由丹荷大道調整至規劃南寶路,并在積谷田路新增一個幼兒園機動車出入口。

2、二期01-02-02地塊
新增的老年人日間照料中心750㎡。地塊計容積率建筑面積由76710㎡調整為77460㎡。

3、三期02-02地塊
新增公共配套設施750㎡(社區警務室50㎡、社區管理用房300㎡、社區服務中心400㎡)。地塊計容積率建筑面積由60900㎡調整為61650㎡。
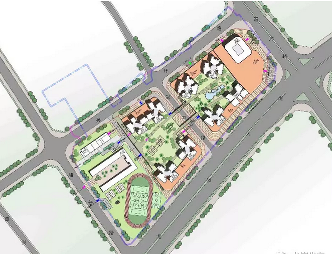
·坪地街道冠云片區城市更新單元
10月15日,龍崗區城市更新和土地整備局發布了一則關于《龍崗區坪地街道冠云片區城市更新單元規劃(草案)》的公示。
項目概況
項目位于龍崗區坪地街道,東臨現狀富坪路,南臨現狀龍崗大道,西臨現狀埔仔路,北臨規劃興坪路。

拆除范圍調整
本次規劃結合權屬、建筑邊界及為打通次干道興坪路,對拆除范圍進行優化,由60999.4平方米調整為69607.9平方米。鑒于本次計劃調整屬于因更新單元計劃制定過程中技術誤差和因城市基礎設施建設需要導致已批計劃拆除范圍變化,根據市規劃和自然資源局《關于印發<深圳市拆除重建類城市更新單元計劃管理規定>的通知》(深規劃資源規〔2019〕4號)第三十四條,該更新單元計劃內容的調整可與更新單元規劃同步申報、審批。

規劃技術經濟指標
更新單元用地面積為70588.8平方米,拆除范圍用地面積69607.9平方米,開發建設用地面積為37861.1平方米,規劃容積率7.6,規劃容積289240平方米;
其中住宅210360平方米(含公共租賃住房26537平方米),商業、辦公及旅館業建筑67000平方米(含母嬰室130平方米),公共配套設施11880平方米(含9班幼兒園2400平方米、占地2950平方米,公交首末站2500平方米,社區健康服務中心1000平方米,社區老年人日間照料中心750平方米,文化活動室1000平方米,社區管理用房300平方米,社區警務室50平方米,便民服務站400平方米,郵政所100平方米,小型垃圾轉運站150平方米,再生資源回收站60平方米,公共廁所60平方米,環衛工人作息房10平方米,公共充電站700平方米,黨群服務中心650平方米,社區級公共配套用房1750平方米),另配建社區體育活動場地占地面積3000平方米,移交27班九年一貫制學校用地面積13056平方米。
不過需要注意的是,兩則公示的更新單元規劃僅為草案,最終成果以政府批件為準。
來源|綜合龍崗發布微信公號